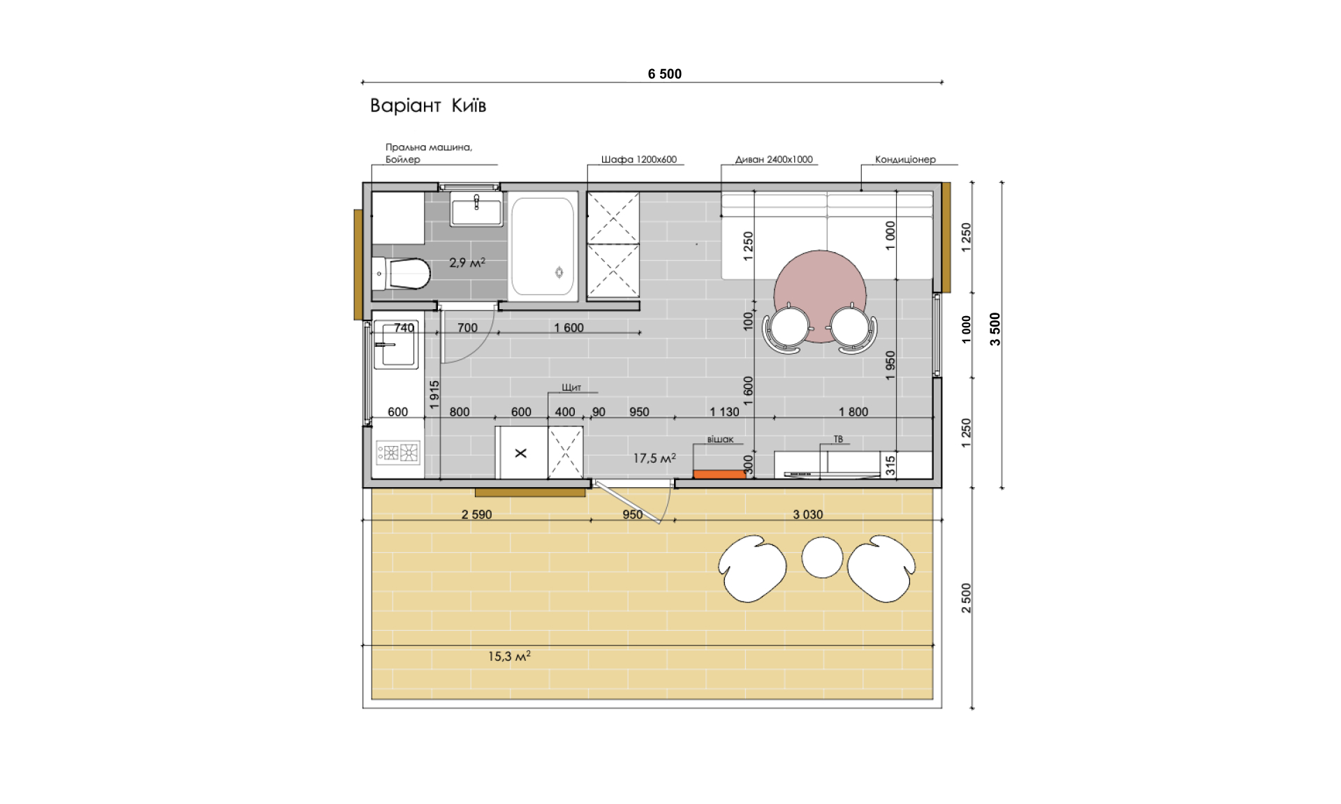
Модульний будинок Київ
- Габарити: 6,5х3,5м + тераса 6,5х2,5м
- Площа: 22,75 м2
- Ціна: від $1,000/м²
1-3 людини
Санвузол
Кухня-вітальня
- Збірно-розбірний металевий каркас з гнутих елементів товщиною не менше 3мм
- Покрівля: плоска, подвійний фальц, металеві балки. Утеплювач PIR 120мм
- Підлога: металеві лаги, утеплювач PIR 100мм, OSB вологостійке 22мм
- Стіни: сендвіч-панелі з утеплювачем PIR 100мм, металопластикові енергозберігаючі вікна та двері
- Внутрішнє оздоблення: підлога – ламінат, стіни – МДФ панелі
- Зовнішнє оздоблення: вуличне освітлення, металевий сайдинг з декором
- Базове наповнення: бойлер 80л, унітаз, душова кабіна, рукомийник, рушникосушарка, шафа для одягу, кухонні меблі з навісними шафами та мийкою, електрична витяжка, електрична плита, конвектори обігріву, система вентиляції.
Будь-який колір по каталогу RAL
*Всі металеві елементи оброблені антикорозійними матеріалами в два шари
Входить до вартості
- Оброблений металевий каркас;
- Утеплені покрівля, підлога та стіни;
- Фінішне оздоблення;
- Енергозберігаючі вікна та двері;
- Кухня;
- Санвузол;
- Базові меблі.
Не входить до вартості
- Фундамент;
- Доставка;
- Тераса.
Дізнайтесь вартість будівництва вашому регіоні
Напишіть нам запит або зателефонуйте
+38 (068) 401 36 52
Крок №1
Вибір проекту та комплектації
Крок №2
Підписання договору
Крок №3
Виготовлення будинку в цеху
Крок №4
Доставка та монтаж