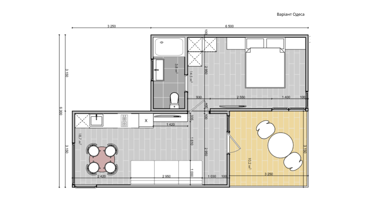
Модульний будинок Одеса
- Габарити: 6,3х9,75м (тераса 3,15х3,25м)
- Площа: 40,95 м2
- Ціна: від $1,000/м²
1-4 людини
Санвузол
Кухня-вітальня
- Збірно-розбірний металевий каркас з гнутих елементів товщиною не менше 3мм
- Покрівля: плоска, подвійний фальц, металеві балки. Утеплювач PIR 120мм
- Підлога: металеві лаги, утеплювач PIR 100мм, OSB вологостійке 22мм
- Стіни: сендвіч-панелі з утеплювачем PIR 100мм, металопластикові енергозберігаючі вікна та двері
- Внутрішнє оздоблення: підлога – ламінат, стіни – МДФ панелі
- Зовнішнє оздоблення: вуличне освітлення, металевий сайдинг з декором
- Базове наповнення: бойлер 80л, унітаз, душова кабіна, рукомийник, рушникосушарка, шафа для одягу, кухонні меблі з навісними шафами та мийкою, електрична витяжка, електрична плита, конвектори обігріву, система вентиляції.
Будь-який колір по каталогу RAL
*Всі металеві елементи оброблені антикорозійними матеріалами в два шари
Входить до вартості
- Оброблений металевий каркас;
- Утеплені покрівля, підлога та стіни;
- Фінішне оздоблення;
- Енергозберігаючі вікна та двері;
- Кухня;
- Санвузол;
- Базові меблі.
Не входить до вартості
- Фундамент;
- Доставка;
- Тераса.
Дізнайтесь вартість будівництва вашому регіоні
Напишіть нам запит або зателефонуйте
+38 (068) 401 36 52
Крок №1
Вибір проекту та комплектації
Крок №2
Підписання договору
Крок №3
Виготовлення будинку в цеху
Крок №4
Доставка та монтаж
Модульні металоконструкції для вашого бізнесу
Окрім модульних будинків, ми спеціалізуємось на рішеннях модульних будівель для бізнесу “під ключ”. Серед них можуть бути:
- Модульні кафе чи кавʼярні,
- Модульний пост охорони,
- Комплекс модульних будівель для робітників (гуртожитки, сантехнічні модулі),
- Освітні модульні будівлі: дитячі садки, школи, та ін.

Питання – відповідь
Хочу купити модульний дім – яка ціна?
Вартість побудови модульного будиночку під ключ варіюється залежно від розміру, матеріалів і комплектації, але зазвичай є більш вигідною в порівнянні з традиційним будівництвом.
Залиште заявку на нашому сайті для більше детального прорахунку ціни для вашого унікального проекту.
Як замовити модульну будівлю під ключ для свого бізнесу?
Для деталізації вашого проекту, прорахунку вартості та замовлення ви можете обрати будь-який зручний для вас спосіб:
- залишити заявку на нашому сайті
- написати нам на пошту vdmmodul@gmail.com
- зателефонувати нам +38 (068) 401 36 52